Save
Ask
Tour
Hide
$875,000
21 Days On Site
312 N 4th StreetKremmling, CO 80459
For Sale|Single Family Residence|Active
2
Beds
2
Total Baths
3,840
SqFt
$228
/SqFt
1965
Built
Subdivision:
Kremmling
County:
Grand
Call Now: 720-277-9001
Is this the listing for you? We can help make it yours.
720-277-9001



Save
Ask
Tour
Hide
Mortgage Calculator
Monthly Payment (Est.)
$3,992Calculator powered by Showcase IDX, a Constellation1 Company. Copyright ©2026 Information is deemed reliable but not guaranteed.
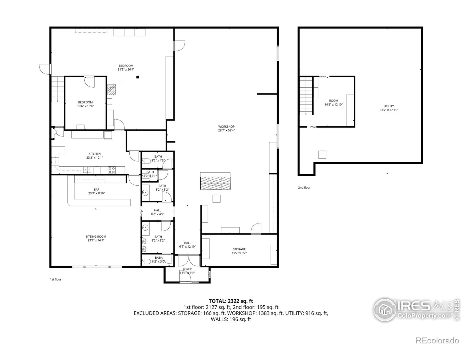
Capitalize on the previous church character that offers expansive square footage and endless possibilities. Create a single family with workshop, multifamily, generational compound? Rear of building did have previous overhead door, offering additional access.
Save
Ask
Tour
Hide
Listing Snapshot
Price
$875,000
Days On Site
21 Days
Bedrooms
2
Inside Area (SqFt)
3,840 sqft
Total Baths
2
Full Baths
N/A
Partial Baths
N/A
Lot Size
0.25 Acres
Year Built
1965
MLS® Number
IR1051687
Status
Active
Property Tax
$4,075
HOA/Condo/Coop Fees
N/A
Sq Ft Source
Assessor
Friends & Family
Recent Activity
| 3 weeks ago | Listing updated with changes from the MLS® | |
| 3 weeks ago | Listing first seen on site |
General Features
Acres
0.25
Levels
One
Property Sub Type
Single Family Residence
SqFt Above
3840
SqFt Total
3840
Utilities
Cable Available
Water Source
Public
Zoning
AA7
Interior Features
Appliances
DishwasherMicrowaveRefrigerator
Basement
None
Heating
Forced Air
Main Level Bedrooms
2
Bedroom
Dimensions - 10 x 13Level - MainDescription - Carpet
Kitchen
Dimensions - 23 x 12Level - MainDescription - Laminate
Save
Ask
Tour
Hide
Exterior Features
Construction Details
BrickMetal Siding
Roof
Metal
Community Features
Financing Terms Available
1031 ExchangeCashConventional
School District
West Grand 1-JT
Schools
School District
West Grand 1-JT
Elementary School
West Grand
Middle School
West Grand
High School
West Grand
Listing courtesy of REMAX RED [email protected]
The content relating to real estate for sale in this Web site comes in part from the Internet Data eXchange ("IDX") program of METROLIST, INC., DBA RECOLORADO real estate listings held by brokers other than REMAX RED are marked with the IDX Logo. This information is being provided for the consumers' personal, non-commercial use and may not be used for any other purpose. All information subject to change and should be independently verified.
The content relating to real estate for sale in this Web site comes in part from the Internet Data eXchange ("IDX") program of METROLIST, INC., DBA RECOLORADO real estate listings held by brokers other than REMAX RED are marked with the IDX Logo. This information is being provided for the consumers' personal, non-commercial use and may not be used for any other purpose. All information subject to change and should be independently verified.
Neighborhood & Commute
Source: Walkscore
Save
Ask
Tour
Hide