1757 W 34th AvenueDenver, CO 80211




Mortgage Calculator
Monthly Payment (Est.)
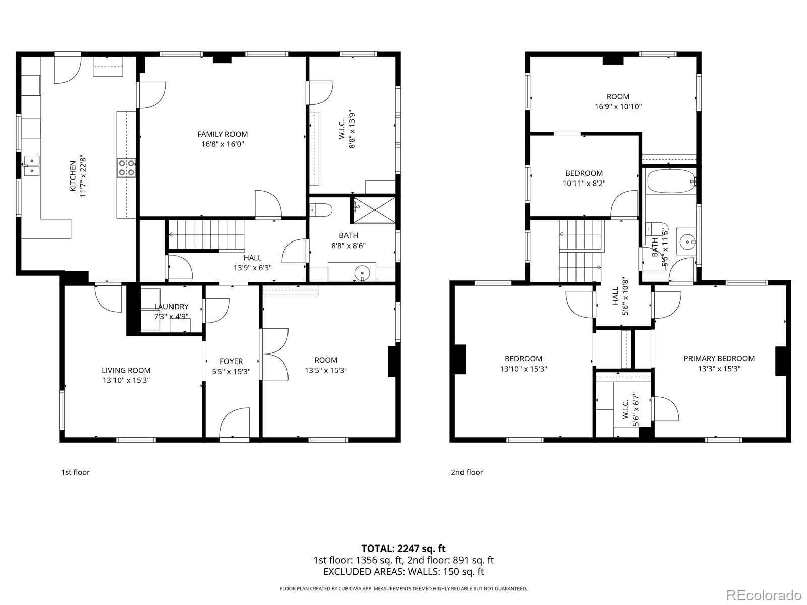
$5,0191757 W 34th Ave/3420 Quivas by appointment ONLY!!! Zoned U-TU-B Property is sold AS IS Unique investment opportunity!! Corner double lot in highly sought after Lower Highland in Denver. (loHi) This lot has two separate dwellings. The 2-story main house facing 34th Ave has three bedrooms and two baths. It is structurally compromised and may eventually need to be rebuilt. However, due to its current location: zero feet setback from the sidewalk on the Quivas Street side, remodeling while leaving certain facade walls intact might be preferable to a full teardown. The second home, formerly a grocery store, facing Quivas Street has been rented as a Corporate Housing unit. This two-bed, one-bath single-story home, approximately 1,000 sf has an open loft layout with a separate attached sun porch currently used as a second bedroom. (non conforming as it does not have a closet) Between both structures is a cobblestone-paved courtyard. The property has a relatively new three car garage accessible from the alley on Quivas Street. and through the courtyard by foot. The legal address for both is 1757 W 34th Ave. While the back, former grocery store is named 3420 Quivas St on Google Maps, it is technically 1757 W 34th Ave #2. Currently both units are rented on a monthly basis. The main house is rented at $2600/month and the former grocery store is rented at $3150/month. This provides a total income of $5,750 a month for any investor while they determine changes and procure permits. All information, claims and statements regarding the use/zoning and potential improvement of this property must be verified by the interested party and are not guaranteed by the Seller/Listing Agent. Attached are floor plans of both units and photos of Quivas property only.
| 7 days ago | Listing updated with changes from the MLS® | |
| 2 weeks ago | Listing first seen on site |
The content relating to real estate for sale in this Web site comes in part from the Internet Data eXchange ("IDX") program of METROLIST, INC., DBA RECOLORADO real estate listings held by brokers other than 8z Real Estate are marked with the IDX Logo. This information is being provided for the consumers' personal, non-commercial use and may not be used for any other purpose. All information subject to change and should be independently verified.