10515 Willow AvenuePoncha Springs, CO 81201




Mortgage Calculator
Monthly Payment (Est.)
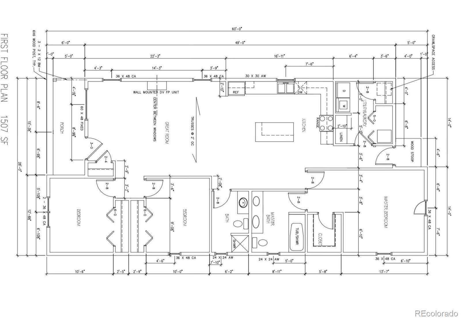
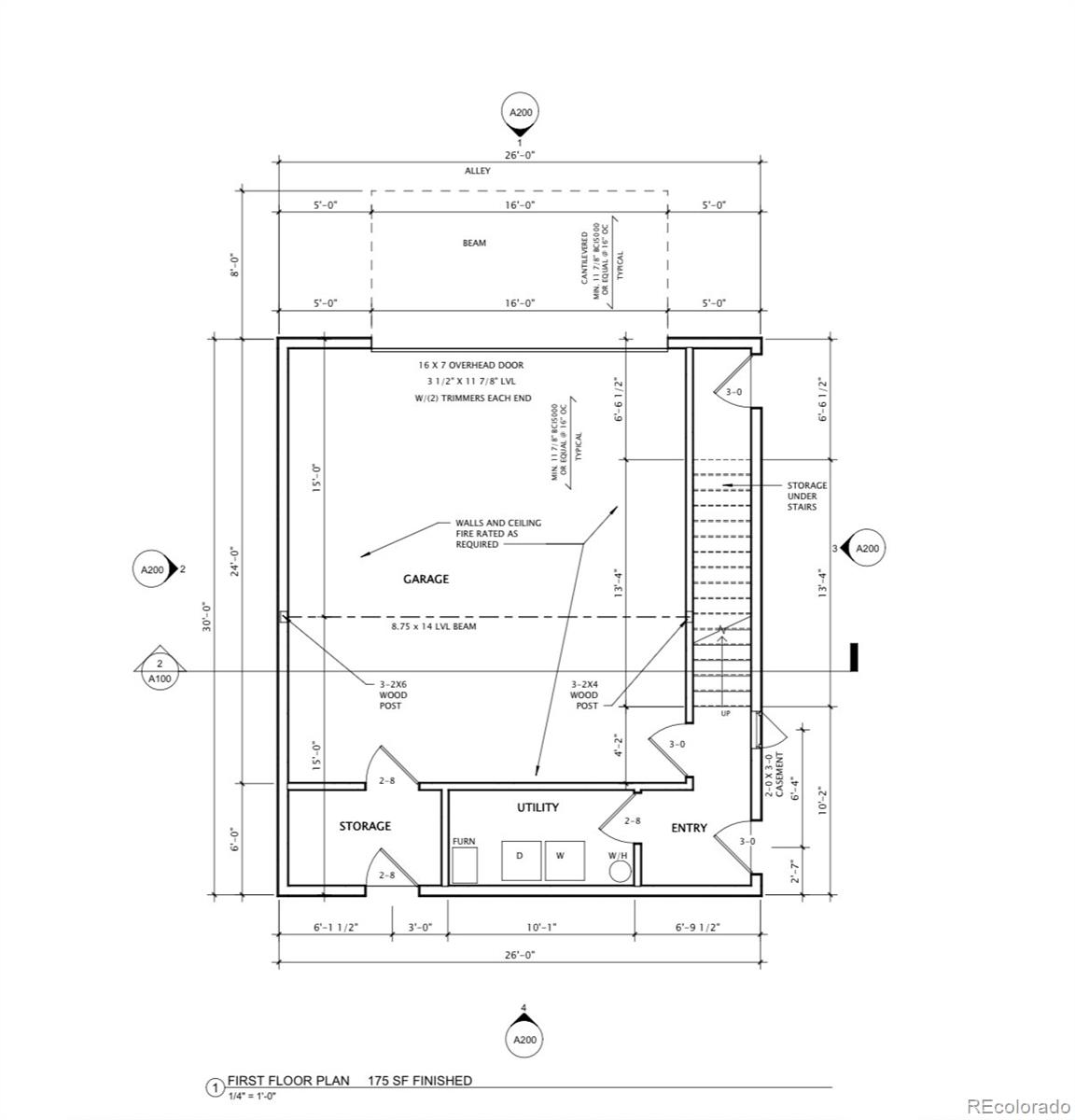
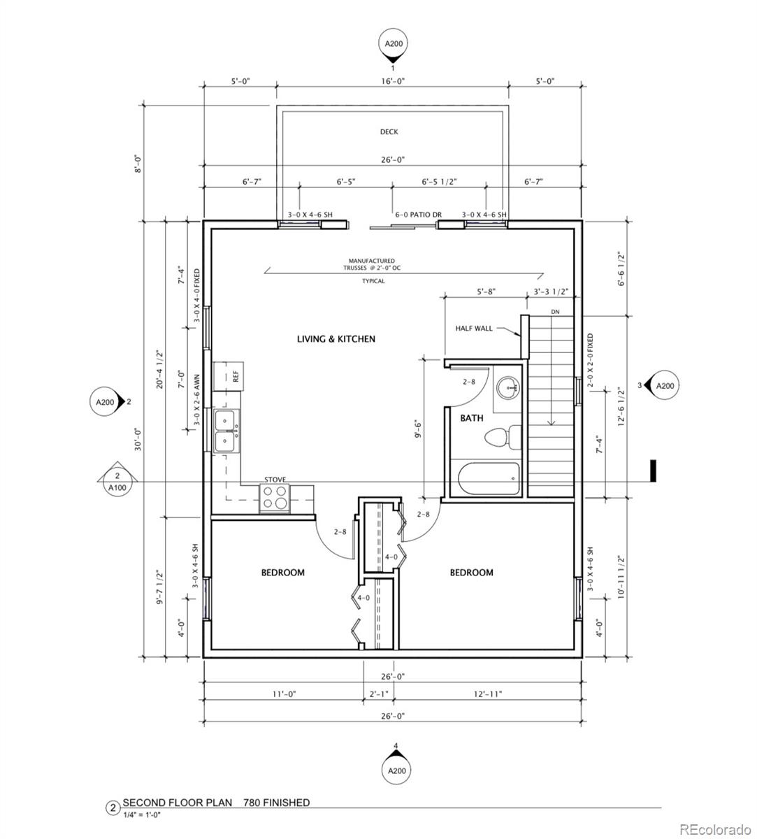
$3,823BUILD TO SUIT house + ADU -- Construction is underway in Poncha Meadows at 10515 Willow Avenue, with expected completion in early June. This thoughtfully designed property will offer a single-story main home plus a separate ADU above an oversized detached two-car garage, creating an ideal setup for flexible living, guests, multigenerational living, or income potential. Early buyers may also have the opportunity to personalize select finishes, adding a BUILT-TO-SUIT component to the purchase. Appliance and fixture selections may be available with decisions made by the third week of March, while flooring, counters and bathroom tile selections will need to be finalized by the second week of April. The main residence will feature approximately 1,500 square feet with three bedrooms and two bathrooms, all on one level. The primary suite will include a patio door opening to the backyard, bringing in natural light and easy outdoor access. The ADU will offer two bedrooms and one bathroom, along with a south-facing balcony and a heated laundry room on the main level. A dedicated exterior-access storage closet attached to the garage will provide convenient space for bikes, outdoor gear, and seasonal equipment. With new construction, versatile living options, and a desirable Poncha Meadows location, this property presents a rare opportunity to enjoy modern design and added functionality in one complete package.
| 3 days ago | Listing updated with changes from the MLS® | |
| 3 days ago | Status changed to Active | |
| 3 days ago | Listing first seen on site |
The content relating to real estate for sale in this Web site comes in part from the Internet Data eXchange ("IDX") program of METROLIST, INC., DBA RECOLORADO real estate listings held by brokers other than Pinon Real Estate Group LLC are marked with the IDX Logo. This information is being provided for the consumers' personal, non-commercial use and may not be used for any other purpose. All information subject to change and should be independently verified.